事務所
空室
【貸事務所】TK新都⼼ビル2階 新宿
K-6324時間利⽤可,⼟⽇・祝⽇利⽤可,OAフロア,耐震構造(新耐震基準),専有部分に男⼥別トイレあり,トイレ2ヶ所,給湯,個別空調,光ファイバー,有⼈警備,24時間セキュリティー,エレベーター
物件概要
- 物件種別
- 事務所
- 名称
- TK新都⼼ビル
- 所在地
- 東京都新宿区⻄新宿1丁⽬ 23-1
- 交通
- JR⼭⼿線「新宿 」駅 徒歩3分
- 築年月
- 1992年11月
- 構造
- 鉄骨鉄筋コンクリート造
- 所在階
- 2階(地上10階 地下2階建て)
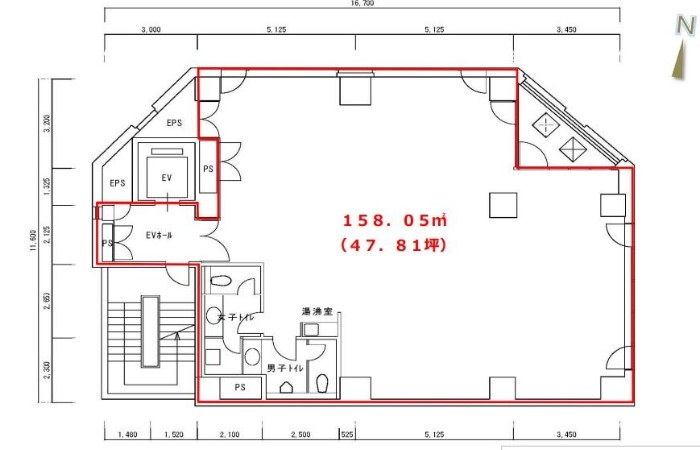
- 専有面積
- 158.05㎡(47.81坪)
- 賃料
- 1,419,957円(税込)
- 管理費
- -
- 共益費
- -
- その他
(月額費用) - -
- 保証金・敷金
- 10ヶ月
- 償却
- 1ヶ月(税別)
- 礼金
- -
- その他
(初期費用) - -
- 契約形態
- 普通建物賃貸借契約
- 契約期間
- 2年間年
- 契約更新
- 可
- 更新条件
- -
- 現況
- 空室
- 引渡し
- 即時
- 取引態様
- 媒介(仲介)
- 【更新日】
- 【次回更新予定日】
- 2025年11月1日
- 上記表示物件は、掲載中に成約済、募集中止、あるいは賃料変更となる場合があります。
- 取引態様の欄に「媒介(仲介)」と表示された物件は「仲介物件」ですので、別途仲介手数料が必要となります。
- 仲介手数料には消費税及び地方消費税がかかります。
- 掲載情報と現況が異なる場合は現況が優先となります。

